top of page
NIÑO YGOT
ninoygot@gmail.com | 778-938-4448
Revit - Plans, Elevations & Details
Detail drawing samples of small to large scale projects from design development stage to construction stage.

canopies for hospital project

food court project - floor plan

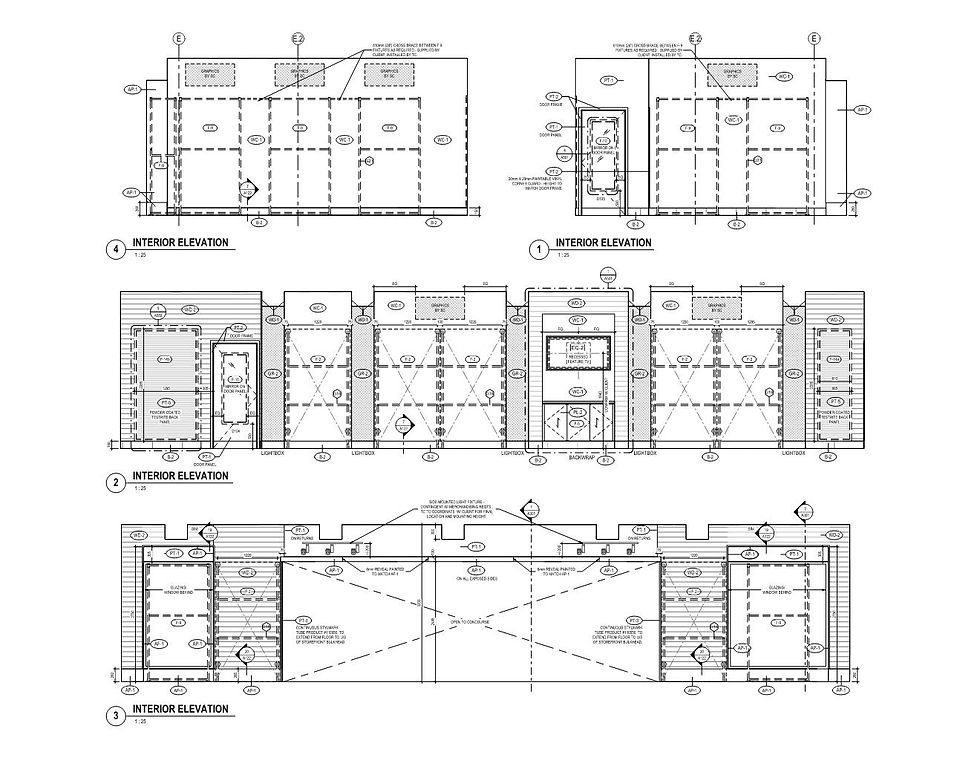
food court project - interior elevations

amazon warehouse template

amazon warehouse template

washroom renovation - design development

washroom renovation - design development

health care project - furniture/ equipment plan

health care project - rcp/ lighting plan

health care project - interior elevations

retail project - rcp & ceiling details

retail project - merchandising plan

retail project - interior elevations

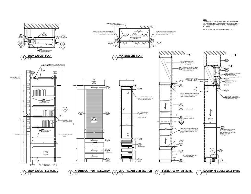
retail project - millwork details

airport project - floor plan

airport project - exterior elevations

airport project - plan

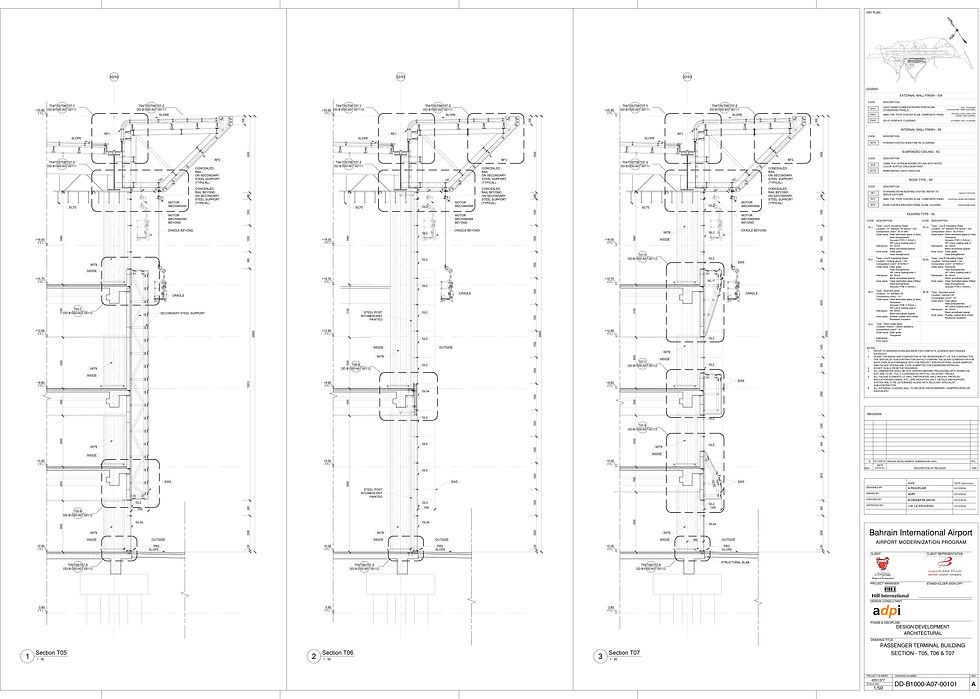
airport project - details

airport project - details

hotel project - suite floor plan
bottom of page